Appartamento in centro storico in vendita

Rif.529V NOVITÀ In Vendita

180.000

Indirizzo

  • Indirizzo: Via Rivetta Sant'Anna
  • Città: Tonadico
  • CAP: 38054

Dettagli

Informazioni aggiornate sabato 11 aprile 2026 alle 18:28

Descrizione

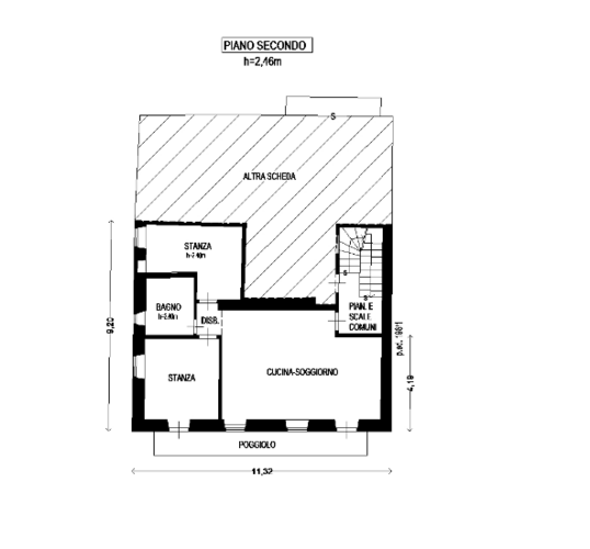
A Tonadico, in posizione tranquilla, proponiamo in vendita un appartamento situato al primo piano. L'ingresso si apre su una luminosa zona giorno con cucina a vista, uno spazio accogliente e funzionale, ideale per vivere la casa in ogni stagione. La zona notte è composta da una camera matrimoniale, una cameretta e un bagno. Completa la proprietà un balcone, perfetto per godersi momenti di relax all'aria aperta.

Il riscaldamento è affidato a una stufa a legna, soluzione che rende l'ambiente caldo e caratteristico. Per l'acqua calda è possibile scegliere tra due opzioni: installare un boiler elettrico oppure collegarsi al teleriscaldamento, già predisposto nell'immobile, per il quale è necessario solamente fare il collegamento interno.

L'appartamento rappresenta una soluzione interessante come investimento, in una zona molto apprezzata dal punto di vista turistico.

PLANIMETRIA